Conversion to Stitch and Glue Construction



The Original Design

Bolger appears to have designed the Singlehander Schooner to be monocoque construction, but included an interior framework to increase the bearing area of the joints. The joints were a combination of mechanical fasteners (EVIL!) and glue.

This type of construction is more traditional and well-suited to builders with carpentry and joinery experience. It does not depend on fiberglass and resins and most, if not all, of the supplies can be obtained at the local hardware store. It's very forgiving and within the skills and means of most any backyard builder.

But it does have its disadvantages. First, it's labor intensive. It involves the cutting and shaping of a large number of pieces of wood. Many of these pieces require beveling to relatively tight tolerances to allow the use of traditional glues. Second, it produces a heavy boat. There is an entire framework resting inside the hull. Third, the mechanical fasteners are evil. They cut up the wood, concentrate stresses, corrode away, expand, contract, work their holes larger and allow water to get into the wood.

While many good boats have been successfully built using this style of construction, the amount of labor and the required future maintenance were off-putting to me. I decided to redesign the boat to use full monocoque stitch and glue construction, with no evil mechanical fasteners.

The Stitch and Glue Schooner

Monocoque structures use their skins as a primary structural element. Rather than just shaping the fluid flow around them, the skins actually carry the loads and stresses of the structure. This eliminates heavy and complicated frameworks. WWI biplanes were essentially skin on frame, WWII aircraft were monocoque.

Monocoque structures get their stiffness from pre-stressed skins. Because the skins are already bent in one direction, they cannot bend in any others.

The schooner's hull shape is suitable for monocoque construction without any changes. In Bolger's design the hull panels are bent in and the deck and bottom are bent up. Joining their edges means that the deck and bottom will resist the sides bending and the sides will resist the deck and bottom bending. The interior framework is actually unnecessary since the hull is a pre-stressed box beam. All that is needed are the bulkheads to define the hull shape and to subdivide the hull into watertight compartments.

So the first step was to get rid of the internal framework. No stem piece, stern piece, no chine logs, no supports around the rudder and keel boxes and no framing around the bulkheads. The only internal supports are the bulkheads themselves and the carlines supporting and stiffening the deck.

Next to go are the evil mechanical fasteners. They never were needed, anyway. The original joints got their strength from the friction between the wood and bearing surfaces. This was increased by the adhesion of the glue. The only use for the mechanical fasteners was to hold everything in place until the glue dried.

The panels are fastened, instead, with strips of fiberglass tape saturated with epoxy resin and hardener laid on top of a thin fillet of woodflour/epoxy putty. The fillet is only as wide as necessary to support the tape so that it doesn't exceed its minimum bend radius.

This type of joint continuously distributes the load over the entire joint, rather than concentrating it at the fasteners. It is a true composite, with the glass providing the tensile strength and the wood acting as a compressive core. The fillet helps transfer the load from one panel to the other.

Another thing I wasn't too crazy about in Bolger's design was the way the plywood was used. The good news was that it made for a very economical layout, the bad news was that there were too many small bits pieces joined together onto the frame. This included building up the 1/2 inch thick bottom from multiple payers of 1/4 thick wood. The deck alone was 4 pieces of wood, plus the built-up area around the keel slot.

I decided to spend a little extra money and go with a mechanically simpler solution. First, that bottom was going to be a single thickness of 1/2 inch. Once all the glue and/or epoxy is factored in, the 2 layers aren't really any cheaper than a single layer of the thicker wood. They are also an inferior construction compared to the 1/2 inch plywood. No garage builder will ever be able to match the laminations produced by a commercial plywood factory.

Next, rather than piece everything together, I decided instead to cut the deck, sides and bottom out of large single sheets of plywood. That way each component would be one unit. That 4-piece deck turned into one large piece of wood.

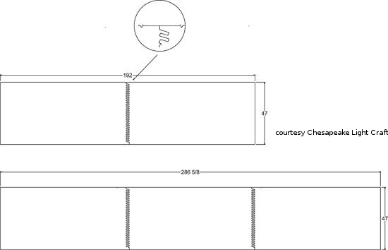
20 foot long pieces of marine plywood aren't cheap and I didn't feel like scarfing, so I decided to try a product sold by Chesapeake Light Craft . It's pieces of plywood with puzzle joints cut into the ends. The joints are precisely cut with a CNC machine and have the same bonding area (8x thickness) that a scarf joint has.

The plywood sheets can be be stacked as long as needed.

They are assembled by brushing thickened epoxy onto the edges of the fingers, then fitting the fingers together. Weights are used to immobilize the joint until the epoxy cures. The cured joints are strong enough to allow the joined wood to be picked up and carried around with no special care for the joint. They are much stronger than a Payson joint , as well as smoother. They flex as well as a scarf joint.

Finally, because my boats always see hard use, I decided to apply fiberglass to all the surfaces. This was mostly for abrasion resistance, but there is also some extra strength due to the construction now being a true cored composite. Because the curves are so gentle, it was possible to apply the glass while the wood was flat. This meant that each piece could be covered with a single continuous sheet of glass. The long continuous threads give maximum strength to the resulting structure. It also means that there are no edges to feather in. Working flat also eliminates the drips, so there was no sanding required after the wood was glassed.

The lamination schedule was:

Location
Weight of Glass
Deck topside
4 ounces
Deck underside
6 ounces
Bottom inside
4 ounces
Bottom outside
6 ounces, graphite epoxy
Side panels outside
4 ounces
Side panels inside
4 ounces
Inside keel box
4 ounces, graphite epoxy
Inside dagger box
4 ounces, graphite epoxy


So in summary, we have a stitch and glue, monocoque composite boat with no internal framework or fasteners, built from integral panels, each cut from a single piece of wood, completely glassed inside and out.



Copyright © 2011-2013 László I. Mórocz. All Rights Reserved.
Next
Back
Schooner home